Contact Agent:
- Apartment
- 2
- 1
- 2
Key Features:
- ** Service Charges and Ground Rent are included within the rent **
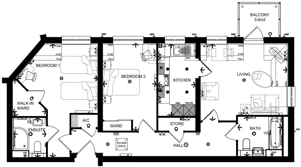
- Modern fitted kitchen with integrated appliances
- Owners’ Lounge & coffee bar with regular social events
- Lodge Manager available 5 days a week
- 24 hour Careline system for safety and security
- Lift to all floors
- Beautifully landscaped gardens
- Owners’ private car park
- Buggy store with charging points
- Guest Suite available for your friends and family to stay in
Description:
** Service Charges and Ground Rent are included in the rent **
Rent a BRAND NEW Churchill Living retirement apartment in Bagshot! Built by the award-winning Churchill Living, this stunning two bedroom BRAND NEW apartment is available to rent, on a long term basis, in this sought after development Wessex Lodge.
Priced at £2,950, call today to book your appointment to view.
Photographs, images, and computer-generated visuals are indicative only and are potentially not of the specific property. They are intended to provide a general impression of the development or style and should not be relied upon as statements of fact.
Wessex Lodge is an exclusive boutique-style development of 25 one and two-bedroom apartments in the village of Bagshot. The development is situated opposite the historic Bagshot Park and is just a short distance from the charming High Street with an array of local shops, boutiques and eateries.
Bagshot is a large village nestled within Surrey which has always had royal connections. The village offers a variety of local leisure pursuits such as the Bagshot Cricket Club, a tennis club, Lightwater Country Park and Bracknell Leisure Centre. Virginia Water Lake is ideal for a stroll taking in its ancient woodlands and cascading waterfalls.
Bagshot offers excellent transport links with buses servicing the surrounding area and its railway station offering direct services to Guildford, Ascot and neighbouring towns.
The Lodge Manager is on hand throughout the day to support the Owners and keep the development in perfect shape as well as arranging many regular events in the Owners’ Lounge from coffee mornings to games afternoons.
A Guest Suite is available for your friends and family to stay in. In addition, you are entitled to use of the Guest Suites at all Churchill Living developments across the country. Prices are available from the Lodge Manager.
Wessex Lodge has been designed with safety and security at the forefront. All apartments have an emergency Careline system installed, monitored by the onsite Lodge Manager during the day and 24 hours, 365 days a year by the Careline team. There are integrated intruder alarms, secure video entry systems and sophisticated fire and smoke detection systems throughout both the apartments and communal areas, providing unrivalled peace of mind.
Wessex Lodge is managed by the award-winning Churchill Estates Management, working closely with Churchill Living and Churchill Sales & Lettings to maintain the highest standards of maintenance and service for every lodge and owner.
Wessex Lodge requires at least one apartment resident to be over the age of 60 with any second resident over the age of 55.
OVER 60's RETIREMENT APARTMENT
LONG TERM TENANCY
Please check regarding Pets with Churchill Estates Management. Any consents given in relation to pets are subject to the terms of the lease and any further rules and regulations made by Churchill Estates Management.
Service charges include:
Careline system, buildings insurance, water and sewerage rates, communal cleaning, utilities and maintenance, garden maintenance, lift maintenance, lodge manager and a contribution to the contingency fund.
Security Deposit:
A security deposit equal to 5 week’s rent will be payable at the start of the tenancy. This covers damages or defaults on the part of the tenant during the tenancy. It will be reimbursed at the end of the tenancy subject to the details of the agreement and the findings of the inventory check out report.
Holding Deposit:
A holding deposit equal to 1 week’s rent will be payable on acceptance of an application. This will be held and used towards the first month’s rent.
Please note: The holding deposit will be withheld if the applicant(s) or any relevant person (including any guarantor(s)) withdraw from the tenancy, fail a Right-to-Rent check, provide materially significant false or misleading information, or fail to sign their tenancy agreement (and/or Deed of Guarantee) within 30 days (or other deadline as mutually agreed in writing).












