Contact Agent:
- Apartment
- 1
- 1
- 1
Key Features:
- One bedroom second floor apartment
- Overlooks the communal gardens
- Fully fitted kitchen with integrated appliances
- Lodge manager available 5 days a week
- Owners lounge & Kitchen with regular social events
- 24 Hour Careline system for safety and security
- Owners private car park
- Great location close to the city centre & excellent transport links
- A Guest Suite is available for your friends and family to stay in. In addition, you are entitled to use of the Guest Suites at all Churchill Living developments across the country
Description:
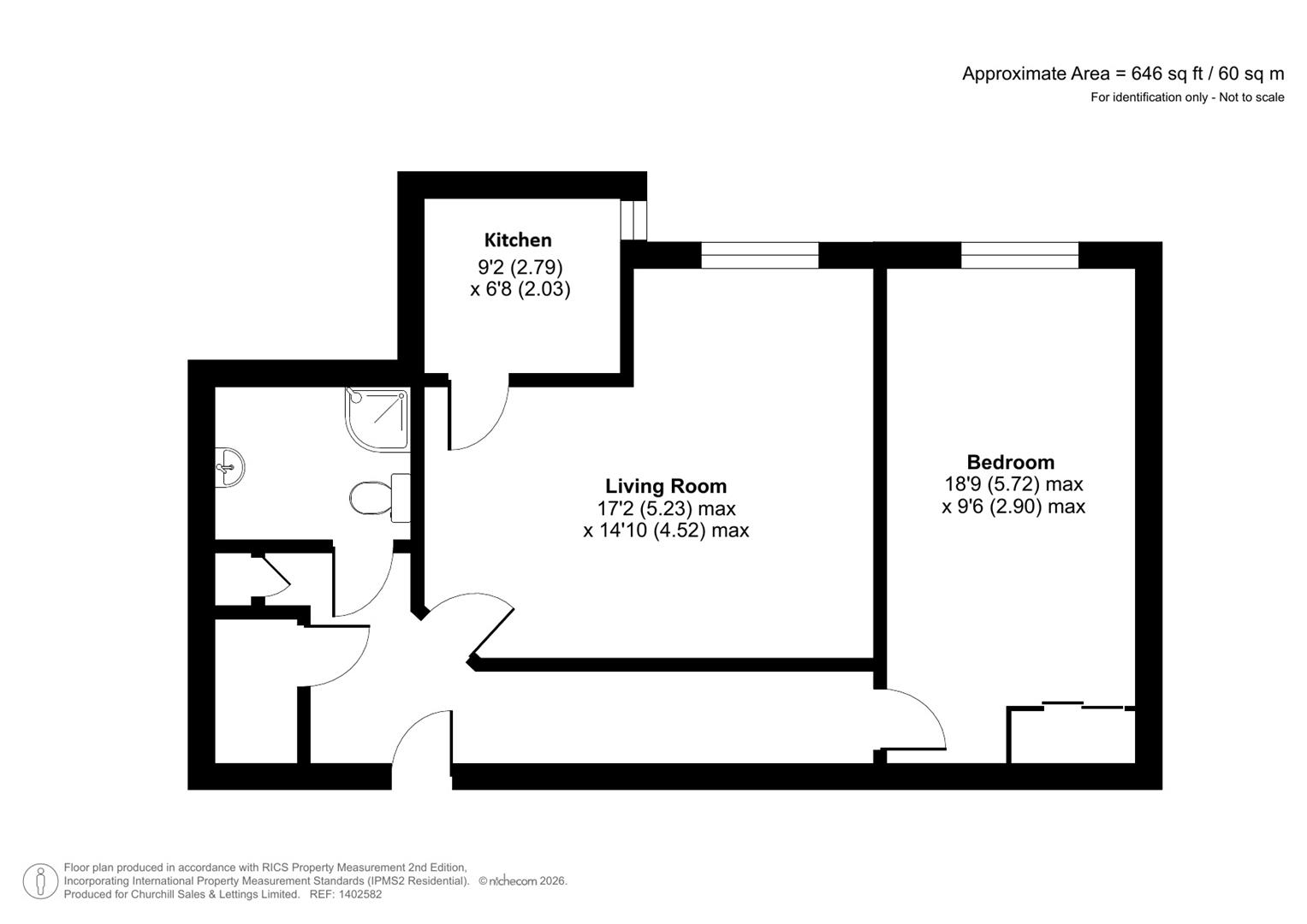
**ONE BEDROOM SECOND FLOOR RETIREMENT APARTMENT**
**SOUTH WEST FACING**
Welcome to Tyrell Lodge! Churchill Sales & Lettings are delighted to be marketing this lovely one bedroom second floor apartment overlooking the communal gardens. The property offers deceptively spacious accommodation throughout and is offered with no forward chain.
The living room offers ample space for living and dining room furniture and benefits from a feature electric fire with attractive surround. A large window provides lots of natural light as well as lovely views over the communal gardens.
The kitchen is accessed via the living room and offers a range of eye and base level units with working surfaces over and tiled splashbacks. There is a built in waist height oven, 4 ring electric hob with extractor hood over, a fridge and freezer. A window allows for light and ventilation.
The bedroom is a generous double room with a useful built in mirrored wardrobe and plenty of space for additional bedroom furniture if required.
The shower room offers a curved shower with handrail, a heated towel rail, WC and wash hand basin with vanity unit beneath.
Perfectly complementing this wonderful apartment is a useful storage cupboard located in the hallway.
Call us today to book your viewing!
Tyrell Lodge is a development of 39 one and two bedroom retirement apartments situated in the City centre of Chelmsford. All the essential amenities are within walking distance and the pedestrianised High Street has most well known chain stores.
Hylands House, built in 1730, has restored interiors and hundreds of acres of parkland. The medieval Chelmsford Cathedral features stained glass and a colourful ceiling. The Essex Regiment Museum displays military artefacts such as weaponry, medals and uniforms. To the southeast, RHS Garden Hyde Hall has hilltop views and includes a rose garden and woodland garden.
Chelmsford is easily accessible by road and is located on the main traffic arteries of the A12, A130 and A414 via the M25 Junction 28. There are regular buses into and around the neighbouring towns and Chelmsford train station is situated on the London main line from Liverpool Street, London.
Tyrell Lodge’s manager is on hand throughout the day to support the residents and keep the development in perfect shape. They arrange many regular events in the Owners’ Lounge from coffee mornings to games afternoons.
A Guest Suite is available for your friends and family to stay in. In addition, you are entitled to use of the Guest Suites at all Churchill Living developments across the country. Prices are available from the Lodge Manager.
Tyrell Lodge has been designed with safety and security at the forefront. The apartment has an emergency Careline system installed, monitored by the onsite Lodge Manager during the day and 24 hours, 365 days a year by the Careline team. Careline integrated intruder alarm, secure video entry system and sophisticated fire and smoke detection systems throughout both the apartment and communal areas provide unrivalled peace of mind.
Tyrell Lodge is managed by the award winning Churchill Estates Management, working closely with Churchill Living and Churchill Sales & Lettings to maintain the highest standards of maintenance and service for every lodge and owner.
Tyrell Lodge requires at least one apartment resident to be over the age of 60 with any second resident over the age of 55.
Service Charge (Year Ending 31st May 2026): £2,541.13 per annum.
Ground Rent: £855.56 per annum. To be reviewed in May 2029
Council Tax: Band D
125 year Lease from 2007
Please check regarding Pets with Churchill Estates Management. Any consents given in relation to pets are subject to the terms of the lease and any further rules and regulations made by Churchill Estates Management
Service charges include: Careline system, buildings insurance, water and sewerage rates, communal cleaning, utilities and maintenance, garden maintenance, lift maintenance, lodge manager and a contribution to the contingency fund.














