Contact Agent:
- Apartment
- 1
- 1
- 1
Key Features:
- One bedroom first floor apartment
- Terrace Lounge leading to roof terrace with outside seating
- Wellbeing suite and communal laundry room
- 24 Hour Careline system for safety and security
- Lodge manager available 5 days a week
- Owners private car park
- Lift to all floors
- A Guest Suite is available for your friends and family to stay in. In addition, you are entitled to use the Guest Suites at all Churchill Living developments across the country
Description:
**ONE BEDROOM FIRST FLOOR RETIREMENT APARTMENT WITH JULIET BALCONY**
Welcome to Stokes Lodge! Churchill Sales & Lettings are delighted to be marketing this lovely one bedroom apartment. The property is conveniently located near the stairs and lift and is presented in fantastic order throughout.
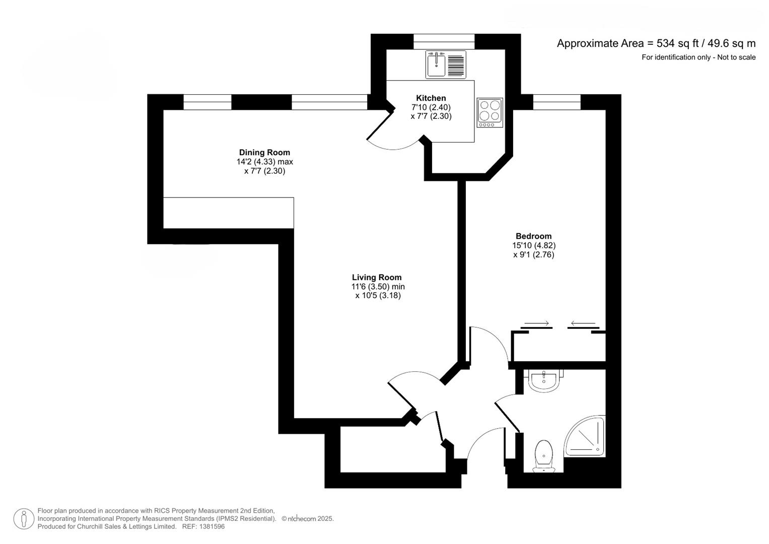
The Living Room benefits from a generous L-shaped layout offering ample space for living and dining room furniture. There is also a feature electric fire with attractive surround. A French door opens to a Juliet Balcony and windows provide lots of natural light.
The Kitchen offers a range of modern eye and base level units with working surfaces over and tiled splashbacks. There is a built in waist height oven, 4 ring electric hob, fridge and freezer. Windows provide light and ventilation.
The Bedroom is a good sized double room with a built in mirrored wardrobe. A window keeps this lovely bedroom bright and light.
The Shower Room offers a curved shower with handrail, a WC, wash hand basin with vanity unit beneath and a heated towel rail.
Perfectly complimenting this wonderful apartment is a useful storage cupboard located in the hallway.
This apartment simply must be viewed!
Stokes Lodge is a development of 61 one and two bedroom apartments ideally located on the edge of the main shopping centre of Camberley. The development features a Terrace Lounge leading out to a stunning Roof Terrace with outdoor seating, along with a Wellbeing Suite and Communal laundry room. Both the apartment and Lodge are heated by a modern high efficiency centralised communal gas boiler, the cost of which is included in the service charges. Because of its exceptionally wide range of facilities, Camberley is uniquely placed to offer everything required for continuing independent living from doctors and dentists to shops, entertainments, travel and leisure centre and all within a few minutes walk of Stokes Lodge.
Camberley offers a wide range of independent shops and high street names as well as a purpose built, modern entertainment complex. The Atrium features a range of shops and leisure facilities including a 9 screen cinema, bowling, health and fitness club, cafes and restaurants. Nearby, Frimley Lodge Park is a multi-award winning ‘Green Flag’ park and includes access to the Canal, a miniature railway, pitch and putt, Flourish Community Garden, BBQ hire, play areas and sport pitches. There are many options for health and fitness, which include two purpose built leisure centres – The Arena and Lightwater – private gyms, numerous golf courses and water sports on Mytchett Lake.
Transport facilities are excellent with regular bus services linking Camberley to the nearby areas of Sandhurst, The Meadows Shopping Centre, Bracknell, Farnham and Woking to name a few. Camberley Train Station offers services to Guildford, Ascot and London Waterloo.
The Lodge manager is on hand throughout the day to support the Owners and keep the development in perfect shape as well as arranging many regular events in the Owners’ Lounge from coffee mornings to games afternoons.
A Guest Suite is available for your friends and family to stay in. In addition, you are entitled to use of the Guest Suites at all Churchill Living developments across the country. Prices are available from the Lodge Manager.
Stokes Lodge has been designed with safety and security at the forefront. The apartment has an emergency Careline system installed, monitored by the onsite Lodge Manager during the day and 24 hours, 365 days a year by the Careline team. Careline integrated intruder alarm, secure video entry system and sophisticated fire and smoke detection systems throughout both the apartment and communal areas provide unrivalled peace of mind.
Stokes Lodge is managed by the award winning Churchill Estates Management, working closely with Churchill Living and Churchill Sales & Lettings to maintain the highest standards of maintenance and service for every lodge and owner.
Stokes Lodge requires at least one apartment resident to be over the age of 60 and any second resident to be over the age of 55.
Service Charge (Year Ending 31st May 2026): £3,057.12 per annum.
Ground rent: £718.40 per annum. To be reviewed May 2029.
Council Tax Band C
125 lease years commencing May 2015
Please check regarding Pets with Churchill Estates Management. Any consents given in relation to pets are subject to the terms of the lease and any further rules and regulations made by Churchill Estates Management.
Service charges include: Careline system, buildings insurance, water and sewerage rates, apartment heating, communal cleaning, utilities and maintenance, garden maintenance, lift maintenance, lodge manager and a contribution to the contingency fund.













