Contact Agent:
- Apartment
- 1
- 1
- 1
Key Features:
- One bedroom first floor apartment
- Fully fitted kitchen with integrated appliances
- Lodge manager available 5 days a week
- Owners lounge & Kitchen with regular social events
- 24 Hour Careline system for safety and security
- Owners private car park
- Great location close to the town centre & excellent transport links
- A Guest Suite is available for your friends and family to stay in. In addition, you are entitled to use the Guest Suites at all Churchill Living developments across the country
Description:
**ONE BEDROOM FIRST FLOOR RETIREMENT APARTMENT**
Welcome to St Peters Lodge! Churchill Sales & Lettings are delighted to be marketing this lovely one bedroom first floor apartment. The property is offered as vacant possession and is presented in very good order throughout.
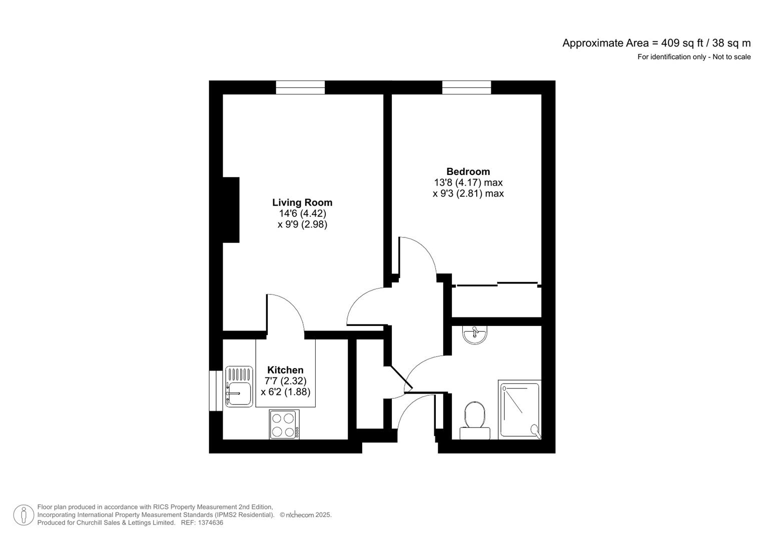
The Living Room offers ample space for living and dining room furniture and benefits from a feature electric fire with attractive surround. A window provides lots of natural light.
The Kitchen offers a range of eye and base level units with working surfaces over and tiled splashbacks. There is a built in waist height oven, 4 ring electric hob with extractor fan over, a fridge and freezer. A window provides light and ventilation.
The Bedroom is a good sized double room with a built in mirrored wardrobe. There is plenty of space for additional furniture if required and a window keeps this lovely bedroom bright and light.
The Shower Room offers a large shower with handrail, a WC, wash hand basin with vanity unit beneath and a heated towel rail.
Perfectly complimenting this wonderful apartment is a useful storage cupboard located in the hallway.
Call us today to book your viewing at St Peters Lodge!
St Peter’s Lodge is a development of 54, one and two bedroom apartments located in the town centre of Portishead. All the essential amenities are within walking distance and the Marina is just half a mile away. Bristol City Centre is less than 10 miles away. Local transport is excellent with regular buses into and around the neighbouring towns.
The Lodge manager is on hand throughout the day to support the Owners and keep the development in perfect shape as well as arranging many regular events in the Owners’ Lounge from coffee mornings to games afternoons.
A Guest Suite is available for your friends and family to stay in. In addition, you are entitled to use of the Guest Suites at all Churchill Living developments across the country. Prices are available from the Lodge Manager. (please see photo on page 2)
St Peter’s Lodge has been designed with safety and security at the forefront. The apartment has an emergency Careline system installed, monitored by the onsite Lodge Manager during the day and 24 hours, 365 days a year by the Careline team. Careline integrated intruder alarm, secure video entry system and sophisticated fire and smoke detection systems throughout both the apartment and communal areas provide unrivalled peace of mind.
St Peter’s Lodge is managed by the award winning Churchill Estates Management, working closely with Churchill Living and Churchill Sales & Lettings to maintain the highest standards of maintenance and service for every lodge and owner.
St Peter’s Lodge requires at least one apartment resident to be over the age of 60 with any second resident over the age of 55.
Service Charge (Year ending 31st August 2026): £3,216.86 per annum.
Ground rent: £866.99 per annum. To be reviewed September 2032.
Council Tax Band B
125 year Lease commencing 2004
Please check regarding Pets with Churchill Estates Management. Any consents given in relation to pets are subject to the terms of the lease and any further rules and regulations made by Churchill Estates Management.
Service charges include: Careline system, buildings insurance, water and sewerage rates, communal cleaning, utilities and maintenance, garden maintenance, lift maintenance, lodge manager and a contribution to the contingency fund.












