Contact Agent:
- Apartment
- 1
- 1
- 1
Key Features:
- One bedroom second floor apartment
- Lodge Manager available 5 days a week
- Fully fitted kitchen with integrated appliances
- Owners lounge & kitchen with regular social events
- 24 hours Careline system for safety and security
- Owners’ private car park
- Great location close to the town centre & excellent transport links
- A Guest Suite is available for your friends and family to stay in. In addition, you are entitled to use the Guest Suites at all Churchill Living developments across the country
Description:
**ONE BEDROOM SECOND FLOOR RETIREMENT APARTMENT**
Welcome to Mitchell Lodge! Churchill Sales & Lettings are delighted to be marketing this lovely one bedroom apartment. The property is conveniently located near the lift and is presented in very good order throughout.
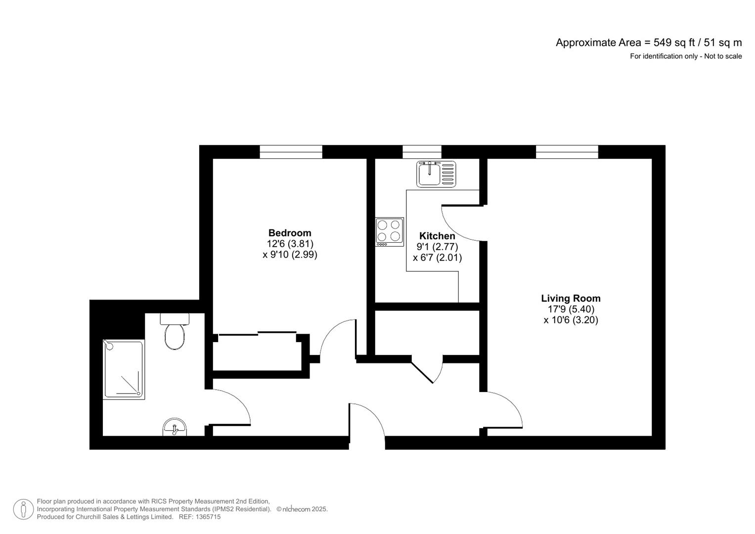
The Living Room offers ample space for living and dining room furniture. A large window provides lots of natural light and a door leads through to the kitchen.
The Kitchen is accessed via the Living Room and offers a range of eye and base level units with working surfaces over and tiled splashbacks. There is a built-in waist-height oven, 4-ring electric hob with extractor hood over, fridge and freezer. Windows provide light and ventilation.
The Bedroom is a good-sized double room with a built-in mirrored wardrobe. There is plenty of space for additional bedroom furniture if required and a window keeps this lovely bedroom bright and light.
The Shower Room offers a shower cubicle with handrails, a heated towel rail, WC and wash basin with vanity unit beneath.
Perfectly complementing this apartment is a useful walk-in storage cupboard located in the hallway.
Call us today to book your viewing at Mitchell Lodge!
Mitchell Lodge is a delightful development of 36 one and two-bedroom retirement apartments located in the village of Bitterne, a suburb of the maritime city of Southampton. It is named after Reginald Joseph Mitchell, the designer of the Vickers Supermarine Spitfire fighter plane. Reginald Mitchell lived in Southampton and the Spitfire first flew from Eastleigh Aerodrome, now Southampton Airport, on 5th March 1936.
Mitchell Lodge is ideally located for the centre of the village, a pedestrianised shopping precinct, which offer a wide selection of shop and amenities; supermarkets and High Street banks can be found alongside traditional bakers and butchers.
Southampton itself is one of Britain’s most historic ports and is a vibrant and modern city. The city is firmly established as the UK’s number one cruise port with a waterfront that welcomes some of the world’s greatest liners and cruise ships. As well as the right maritime heritage, there is also a wealth of beautifully kept parks and green spaces, which rightly earn Southampton the title of ‘the green city’. Southampton is also on the doorstep of England’s smallest national park, The New Forest, an ancient forest which consists of the 145 square miles of open heath and woodlands, home to its famous wild ponies.
The village is well served by public transport with regular train services to Southampton, Portsmouth and Southsea and buses catering for a variety of local journeys, enabling you to travel when you wish.
The Lodge manager is on hand throughout the day to support the owners and keep the development in perfect shape. They arrange many regular events in the Owners’ Lounge from coffee mornings to games afternoons.
A Guest Suite is available for your friends and family to stay in. In addition, you are entitled to use of the Guest Suites at all Churchill Living developments across the country. Prices are available from the Lodge Manager.
Mitchell Lodge has been designed with safety and security at the forefront. The apartment has an emergency Careline system installed, monitored by the onsite Lodge Manager during the day and 24 hours, 365 days a year by the Careline team. Careline integrated intruder alarm, secure video entry system and sophisticated fire and smoke detection systems throughout both the apartment and communal areas provide unrivalled peace of mind.
Mitchell Lodge is managed by the award winning Churchill Estates Management , working closely with Churchill Living and Churchill Sales & Lettings to maintain the highest standards of maintenance and service for every lodge and owner.
Mitchell Lodge requires at least one apartment resident to be over the age of 60 with any second resident over the age of 55.
Service Charge (Year Ending 31st May 2026): £3,022.71 per annum.
Ground Rent £597.74 per annum. To be reviewed December 2025.
Council Tax: Band B
125 year Lease commencing 2010
Please check regarding Churchill Estates Management. Any consents given in relation to pets are subject to the terms of the lease and any further rules and regulations made by Churchill Estates Management.
Service charges include: Careline system, buildings insurance, water and sewerage rates, communal cleaning, garden maintenance, lift maintenance, lodge manager and a contribution to the contingency fund and redecoration fund.
















