Contact Agent:
- Apartment
- 1
- 1
- 1
Key Features:
- One bedroom first floor apartment
- Modern fitted kitchen with integrated appliances
- Lodge Manager available 5 days a week
- Owners’ Lounge with regular social events
- 24 hour Careline system for safety and security
- Owners’ private car park
- Close to the town centre & excellent transport links
- Buggy store and fully equipped laundry room
- South Easterly facing
- A Guest Suite is available for your friends and family to stay in. In addition, you are entitled to use the Guest Suites at all Churchill Living developments across the country
Description:
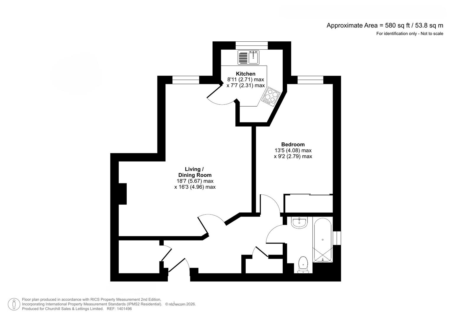
**ONE BEDROOM FIRST FLOOR RETIREMENT APARTMENT**
Situated in the fantastic development of Matthews Lodge is this delightful one bedroom apartment. The property is conveniently located near the lift and stairs and is presented in good order throughout.
The L-shaped Living Room offers ample space for living and dining room furniture and benefits from a feature electric fire with attractive surround. A large window provides lots of natural light and a door leads into the kitchen.
The Kitchen is accessed via the Living room and offers a range of eye and base level units with working surfaces over and tiled splashbacks. There is a built-in waist height oven, 4-ring electric hob with extractor hood over, a fridge and freezer. A window provides light and ventilation.
The Bedroom is a good sized double room with built in mirrored wardrobe. There is plenty of space for additional furniture if required and window keeps this lovely bedroom bright and light.
The Bathroom offers a bath tub with a overhead shower and handrail, a WC, heated towel rail and wash basin with vanity until beneath.
Perfectly complementing this lovely apartment is a useful storage cupboard located off the Hallway.
Call us today to book your viewing at Matthews Lodge!
Matthews Lodge is a prestigious development of 37 one and two bedroom retirement apartments located in the historic town of Addlestone. Situated midway between Weybridge and the ancient Abbey town of Chertsey, Addlestone and the surrounding areas have something for everyone with a wealth of leisure facilities, parks and open spaces including the local bowls club and putting green. In addition, the town is home to a golf club and leisure centre.
Just a few miles away is one of Britain’s best loved gardens, the RHS wisely Gardens, flower shows and tranquillity time and time again. Addlestones Community Theatre hosts a busy program of plays and just 5 miles away is the South East’s foremost theatres, the New Victoria Theatre in Woking, where first class drama and musical productions are presented.
Addlestone has excellent transport links to surrounding towns and villages. It is served by a rail link to Waterloo and the M25 and M3 are just a few minutes’ drive away.
The Lodge manager is on hand throughout the day to support the Owners and keep the development in perfect shape. They arrange many regular events in the Owners’ Lounge from coffee mornings to games afternoons.
A Guest Suite is available for your friends and family to stay in. In addition, you are entitled to use of the Guest Suites at all Churchill Living developments across the country. Prices are available from the Lodge Manager.
Matthews Lodge has been designed with safety and security at the forefront, the apartment has an emergency Careline system installed, monitored by the onsite Lodge Manager during the day and 24 hours, 365 days a year by the Careline team. A Careline integrated intruder alarm, secure video entry system and sophisticated fire and smoke detection systems throughout both the apartment and communal areas provide unrivalled peace of mind.
Matthews Lodge is managed by the award-winning Churchill Estates Management, working closely with Churchill Living and Churchill Sales & Lettings to maintain the highest standards of maintenance and service for every lodge and owner.
Mathews Lodge requires at least one apartment resident to be over the age of 60 with any second resident over the age of 55.
Service Charge (Year Ending 31st May 2026): £2,711.06 per annum.
Ground rent £811.26 per annum. Due to be reviewed July 2028.
Council Tax: Band C
125 year Lease commencing 2017
Please check regarding Pets with Churchill Estates Management. Any consents given in relation to pets are subject to the terms of the lease and any further rules and regulations made by Churchill Estates Management.
Service charges include: Careline system, buildings insurance, water and sewerage rates, communal cleaning, utilities and maintenance, Ground Source Heating for the apartment, garden maintenance, lift maintenance, lodge manager and a contribution to the contingency fund.












