Contact Agent:
- Apartment
- 1
- 1
- 1
Key Features:
- A first floor apartment with a Juliet balcony, overlooking the gardens
- Fully fitted kitchen with integrated appliances
- Owners’ lounge & kitchen with regular social events
- 24 hour Careline system for safety and security
- Great location close to the town centre & excellent transport links
- Lodge manager available 5 days a week
- Owners’ private car park
- Wonderful communal Gardens
- A Guest Suite is available for your friends and family to stay in. In addition, you are entitled to use of the Guest Suites at all Churchill Retirement Living developments across the country
- RENT INCLUDES HEATING, WATER & SEWERAGE RATES & CARELINE SYSTEM
Description:
**RETIREMENT APARTMENT FOR THOSE AGED 60 OR OVER**
Churchill Sales & Lettings are delighted to be marketing this wonderful one bedroom first floor apartment which is available immediately. The apartment offers deceptively spacious accommodation and a highly convenient location close to an array of local shopping facilities.
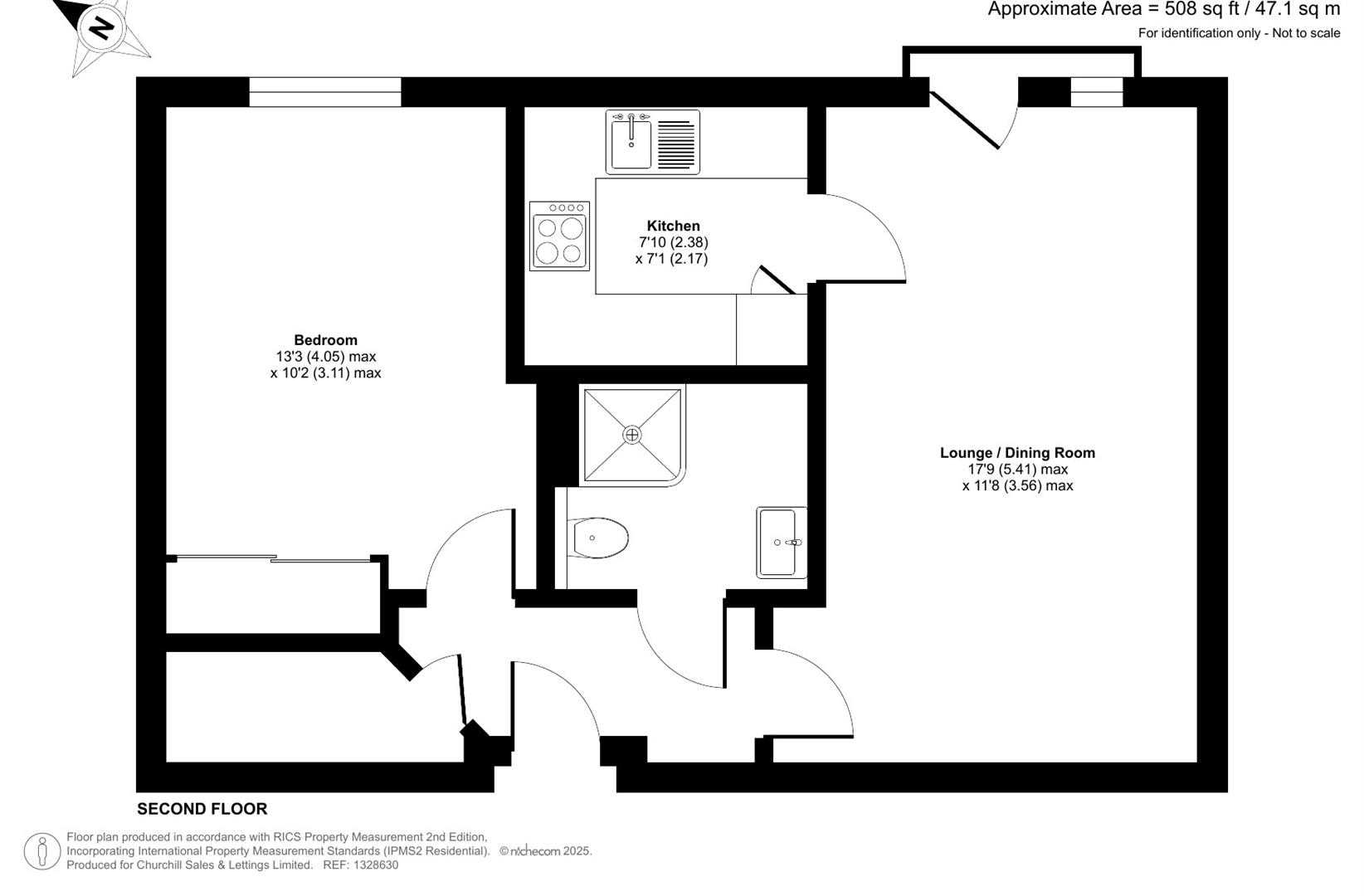
The Lounge is a lovely room which offers ample space for living and dining room furniture. There is a feature electric fireplace with attractive surround and a Juliet balcony overlooking the communal gardens.
The Kitchen, which is accessed via the Lounge, offers a range of eye and base level units with working surfaces over. There is a built in fridge, freezer, waist height oven, 4 ring electric hob and a washer/dryer. The kitchen also benefits from a window, which gives lots of natural light.
The double bedroom is a great size and has a useful built in mirror fronted sliding wardrobe. There is also plenty of space for additional bedroom furniture if required.
The Shower Room offers a curved glass shower cubicle, a WC and a wash hand basin with vanity unit beneath and storage above.
Call us now to book your viewing at Knights Lodge.
Knights Lodge is a stylish development of 41 one and two bedroom retirement apartments situated on North Close in Lymington. The Georgian market town of Lymington is positioned within the New Forest National Park and is situated on the Lymington River on the Solent. A street market is held in the town every Saturday which attracts visitors from near and far to shop for everyday produce including fruit and vegetables, bread, meat and cakes, as well as clothes, jewellery, local crafts and household items. Knights Lodge is ideally located for access to the high street which has a mix of national and independent retailers, as well as high street banks, opticians, florists, travel agents, gift shops, supermarkets, cafes and public houses. Lymington Library is situated on North Close. The cobbled street of the old town leads you to the Quay where you will find a mixed array of luxury yachts and fishing boats, and where you can take a cruise along the Lymington River. The town has two marinas and two sailing clubs and is home to the Royal Lymington Yacht Club.
Lymington Town railway station is located in Station Street where South West Trains operates services to Lymington Pier and to Brockenhurst where connecting trains can be boarded for destinations including Southampton, Winchester, London Waterloo, Poole, Weymouth and Manchester. The Isle of Wight car and passenger ferry operates regularly between Lymington and Yarmouth taking just 40 minutes, making it the shortest and fastest route to the Isle of Wight.
The Lodge manager is on hand throughout the day to support the Owners and keep the development in perfect shape as well as arranging many regular events in the Owners’ Lounge from coffee mornings to games afternoons.
A Guest Suite is available for your friends and family to stay in. In addition, you are entitled to use of the Guest Suites at all Churchill Retirement Living developments across the country. Prices are available from the Lodge Manager.
Knights Lodge has been designed with safety and security at the forefront, the apartment has an emergency Careline system installed, monitored by the onsite Lodge Manager during the day and 24 hours, 365 days a year by the Careline team. A Careline integrated intruder alarm, secure video entry system and sophisticated fire and smoke detection systems throughout both the apartment and communal areas provide unrivalled peace of mind.
Knights Lodge is managed by the award winning Churchill Estates Management, working closely with Churchill Retirement Living and Churchill Sales & Lettings to maintain the highest standards of maintenance and service for every lodge and owner.
Knights Lodge requires at least one apartment Owner to be over the age of 60 with any second Owner over the age of 55.
OVER 60'S RETIREMENT APARTMENT
Council Tax: Band C
Please check regarding Pets with Churchill Estates Management. Any consents given in relation to pets are subject to the terms of the lease and any further rules and regulations made by Churchill Estates Management
Service charges include: Careline system, buildings insurance, water and sewerage rates, communal cleaning, ground source heating, communal utilities and maintenance, garden maintenance, lift maintenance, Lodge Manager and a contribution to the contingency fund. THESE ARE PAID BY THE LANDLORD.
Security Deposit
A security deposit equal to 5 week’s rent will be payable at the start of the tenancy. This covers damages or defaults on the part of the tenant during the tenancy. It will be reimbursed at the end of the tenancy subject to the details of the agreement and the findings of the inventory check out report.
Holding Deposit
A holding deposit equal to 1 weeks rent will be payable on acceptance of an application. This will be held and used towards the first months rent
Please note: The holding deposit will be withheld if the applicant(s) or any relevant person (including any guarantor(s)) withdraw from the tenancy, fail a Right-to-Rent check, provide materially significant false or misleading information, or fail to sign their tenancy agreement (and / or Deed of Guarantee) within 30 days (or other deadline as mutually agreed in writing).














