Contact Agent:
- Apartment
- 1
- 1
- 1
Key Features:
- One bedroom ground floor retirement apartment
- Own Patio area
- Good decorative order
- Lift to all floors
- Fully fitted kitchen with integrated appliances
- Lodge manager available Monday to Friday
- Owners Lounge with regular social events
- 24 hour emergency Careline system
- A Guest Suite is available for your friends and family to stay in. In addition, you are entitled to use of the Guest Suites at all Churchill Retirement Living developments across the country.
- Communal gardens
Description:
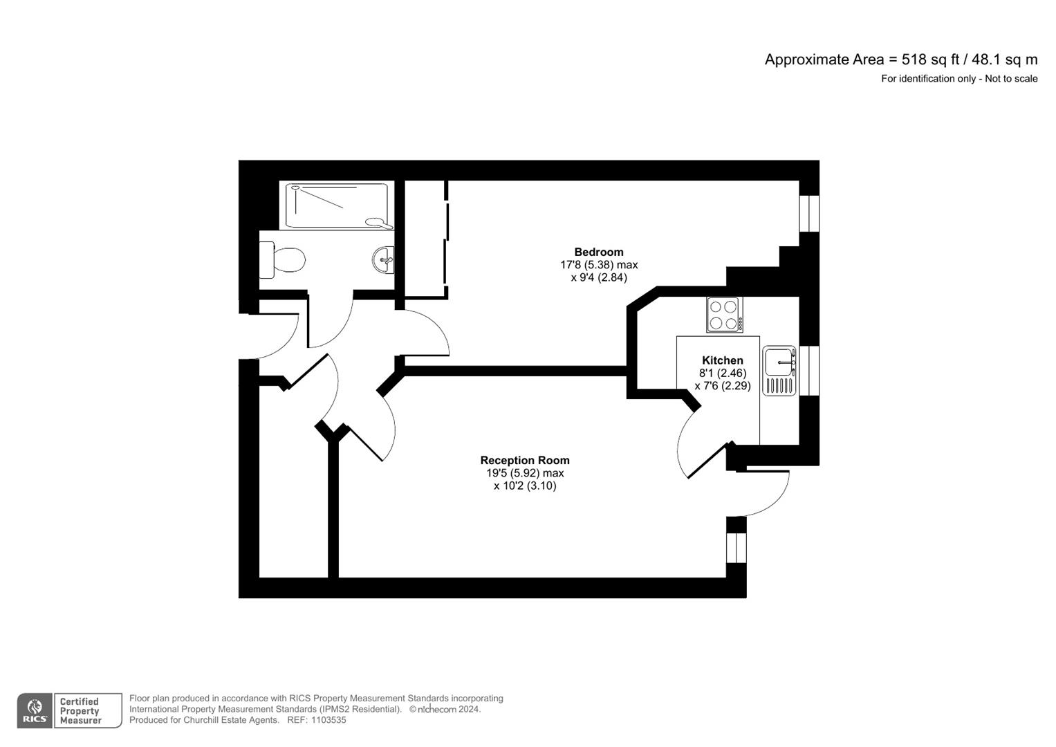
Churchill Sales & Lettings are pleased to be marketing this one bedroom, ground floor retirement apartment with Patio.
The Lounge offers ample space for living and dining room furniture and has a feature electric fireplace with attractive surround. A door opens onto the patio area.
The Kitchen is accessed via the Lounge and offers a range of eye and base level units with working surfaces over and tiled splashbacks. There is a built in waist height oven, 4 ring electric hob with extractor hood over, a fridge and a freezer. A window allows for light and ventilation.
The Bedroom is a generous double room with a useful built in mirrored wardrobe and plenty of space for additional bedroom furniture if required.
The Shower Room offers a large shower cubicle with handrail, heated towel rail, a WC and wash hand basin with vanity unit beneath.
Perfectly complementing the apartment is a useful storage cupboard located in the hallway.
Hamlet Lodge is a prestigious development of 48 one and two bedroom Retirement apartments for the over 60’s. These retirement properties are ideally located for access to the bustling city centre, which combines High Street stores with a wide range of specialist shops and boutiques. Alongside restaurants and cafes within the pedestrianised centre, two modern shopping centres, The Mall Eastgate and Kings Walk cater for all your shopping needs. Gloucester has been very successful in retaining much of its market town atmosphere with an all year round covered market selling traditional local produce.
To the east of Gloucester, The Cotswolds known for their gentle hillsides and sleepy villages and designated as an Area of Outstanding Natural Beauty offer endless walking opportunities, many based in and around the characteristic villages and market towns. The Cotswolds also have some of the finest gardens in Great Britain and a regular calendar of festivals and events to enjoy.
Hamlet Lodge’s manager is on hand throughout the day to support the residents and keep the development in perfect shape. They assist in arranging many regular events in the Owners Lounge from coffee mornings to games afternoons.
A Guest Suite is available for your friends and family to stay in. In addition, you are entitled to use of the Guest Suites at all Churchill Retirement Living developments across the country. Prices are available from the Lodge Manager.
Hamlet Lodge has been designed with safety and security at the forefront, the apartment has an emergency Careline system installed, monitored by the onsite Lodge Manager during the day and 24 hours, 365 days a year by the Careline team. A Careline integrated intruder alarm, secure video entry system and sophisticated fire and smoke detection systems throughout both the apartment and communal areas provide unrivalled peace of mind.
Hamlet Lodge is managed by the award winning Churchill Estates Management, working closely with Churchill Living and Churchill Sales & Lettings to maintain the highest standards of maintenance and service for every lodge and owner.
Hamlet Lodge requires at least one apartment resident to be over the age of 60 with any second resident over the age of 55.
OVER 60's RETIREMENT APARTMENT
Council Tax: Band A
Please check regarding Pets with Churchill Estates Management. Any consents given in relation to pets are subject to the terms of the lease and any further rules and regulations made by Churchill Estates Management.
LANDLORD PAYS Service charges include: Careline system, buildings insurance, water and sewerage rates, communal cleaning, utilities and maintenance, garden maintenance, lift maintenance & Lodge Manager.
Security Deposit
A security deposit equal to 5 week’s rent will be payable at the start of the tenancy. This covers damages or defaults on the part of the tenant during the tenancy. It will be reimbursed at the end of the tenancy subject to the details of the agreement and the findings of the inventory check out report.
Holding Deposit
A holding deposit equal to 1 weeks rent will be payable on acceptance of an application. This will be held and used towards the first months rent
Please note: The holding deposit will be withheld if the applicant(s) or any relevant person (including any guarantor(s)) withdraw from the tenancy, fail a Right-to-Rent check, provide materially significant false or misleading information, or fail to sign their tenancy agreement (and / or Deed of Guarantee) within 30 days (or other deadline as mutually agreed in writing).














