Contact Agent:
- Apartment
- 1
- 1
- 1
Key Features:
- One bedroom, second floor retirement apartment
- Rent includes water, sewerage and heating
- Juliet balcony over looking gardens
- Good decorative order
- Lodge Manager available 5 days a week
- Fully fitted kitchen with integrated appliances
- Stunning Communal Gardens
- Lift to all floors
- Owners private car parking
- A Guest Suite is available for your friends and family to stay in. In addition, you are entitled to use of the Guest Suites at all Churchill Living developments across the country.
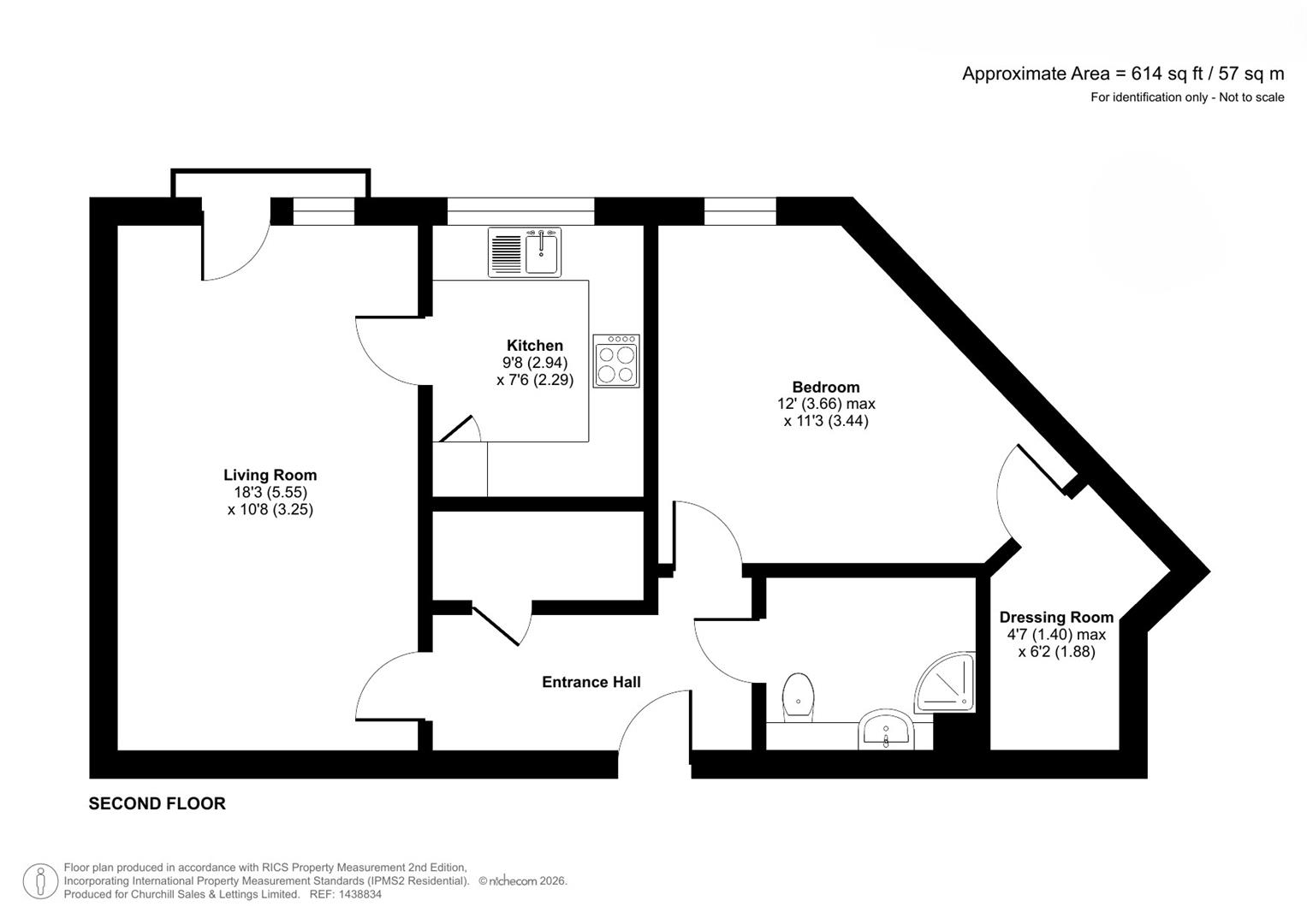
Description:
Churchill Sales & Lettings are delighted to be marketing this lovely one bedroom second floor apartment with Juliet Balcony overlooking the communal garden. The property is conveniently located for the lift and presented in good order, with a juliet balcony over looking the gardens.
The Lounge offers ample space for living and dining room furniture and has a feature electric fireplace with attractive surround.
The Kitchen is accessed via the Lounge and offers a range of eye and base level units with working surfaces over and tiled splashbacks. There is a built in waist height oven, 4 ring electric hob with extractor hood over, a fridge, a frost-free freezer and washer/dryer. A window allows for light and ventilation.
The Bedroom is a generous double room with a useful walk-in wardrobe and plenty of space for additional bedroom furniture if required.
The Shower Room offers a large shower cubicle with handrail, heated towel rail, a WC and wash hand basin with vanity unit beneath.
Perfectly complementing this wonderful apartment is a useful storage cupboard located in the hallway.
Eleanor Lodge is a beautiful development of 28 one and two bedroom retirement apartments in the suburb of Knowle just 3 miles from Solihull and 17 miles from Birmingham City Centre.
Knowles’ High Street offers an array of independent shops as well as cafes, restaurants and shops. Touchwood Shopping centre is a short journey away in Solihull with a wide range of shops as well as a Cinema.
Eleanor Lodge’s Manager is on hand throughout the day to support the owners and keep the development in perfect shape. They arrange many regular events in the Owners’ Lounge from coffee mornings to games afternoons.
A Guest Suite is available for your friends and family to stay in. In addition, you are entitled to use of the Guest Suites at all Churchill Living developments across the country. Prices are available from the Lodge Manager.
Eleanor Lodge has been designed with safety and security at the forefront. The apartment has an emergency Careline system installed, monitored by the onsite Lodge Manager during the day and 24 hours, 365 days a year by the Careline team. A Careline integrated intruder alarm, secure video entry system and sophisticated fire and smoke detection systems throughout both the apartment and communal areas provide unrivalled peace of mind. .
Eleanor Lodge is managed by the award winning Churchill Estates Management, working closely with Churchill Living and Churchill Sales & Lettings to maintain the highest standards of maintenance and service for every lodge and owner.
Eleanor Lodge requires at least one apartment resident to be over the age of 60 with any second resident over the age of 55.
Council Tax Band D
Please check regarding Pets with Churchill Estates Management. Any consents given in relation to pets are subject to the terms of the lease and any further rules and regulations made by Churchill Estates Management.
Landlord pays service charges, this include: Careline system, buildings insurance, water and sewerage rates, air source heating, communal cleaning, utilities and maintenance, garden maintenance, lift maintenance, Lodge Manager.
Security Deposit
A security deposit equal to 5 week’s rent will be payable at the start of the tenancy. This covers damages or defaults on the part of the tenant during the tenancy. It will be reimbursed at the end of the tenancy subject to the details of the agreement and the findings of the inventory check out report.
Holding Deposit
A holding deposit equal to 1 weeks rent will be payable on acceptance of an application. This will be held and used towards the first months rent
Please note: The holding deposit will be withheld if the applicant(s) or any relevant person (including any guarantor(s)) withdraw from the tenancy, fail a Right-to-Rent check, provide materially significant false or misleading information, or fail to sign their tenancy agreement (and / or Deed of Guarantee) within 30 days (or other deadline as mutually agreed in writing).



















