Contact Agent:
- Apartment
- 1
- 1
- 1
Key Features:
- One bedroom ground floor apartment with patio
- Lodge Manager available 5 days a week
- Wellbeing suite, Guest Suite and Laundry Room
- Lift to all floors
- Intruder Alarms and Video door entry system
- 24 Hour emergency Careline system
- Car parking and landscaped gardens
- A Guest Suite is available for your friends and family to stay in. In addition, you are entitled to use the Guest Suites at all Churchill Living developments across the country
- South Easterly facing
Description:
**ONE BEDROOM GROUND FLOOR RETIREMENT APARTMENT WITH PATIO**
**SOUTH EASTERLY FACING**
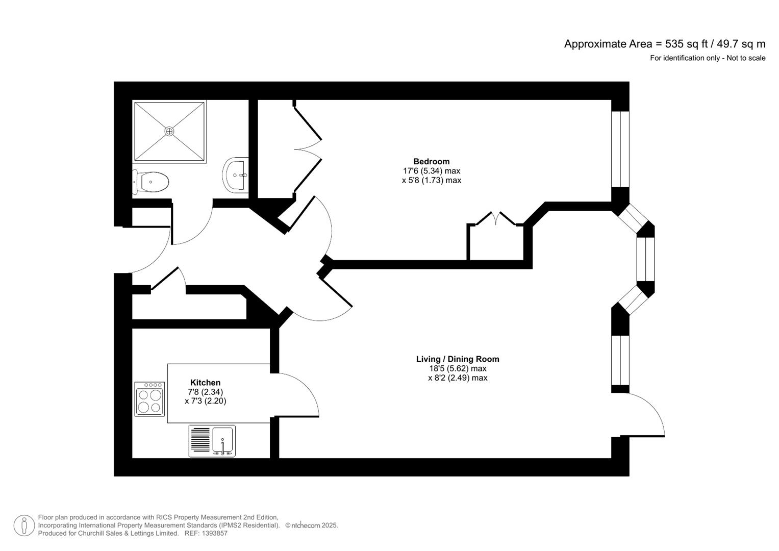
Churchill Sales & Lettings are delighted to be marketing this lovely one bedroom ground floor apartment which benefits from a patio overlooking the communal gardens. The property is presented in very good order throughout and is conveniently located on the same floor as the owners lounge and laundry room.
The Living Room offers ample space for living and dining room furniture and benefits from a feature electric fire with attractive surround. A French door opens to a private patio area and a further door leads through to the Kitchen.
The Kitchen offers a range of eye and base level units with working surfaces over and tiled splashbacks. There is a built in waist height oven, 4 ring electric hob, fridge and freezer.
The Bedroom is a good sized double room with a built in mirrored wardrobe plus an additional wardrobe, providing ample storage. A window keeps this lovely bedroom bright and light.
The Shower Room offers a shower with handrails and a shower seat, a WC, wash hand basin with vanity unit beneath and a heated towel rail.
Perfectly complimenting this wonderful apartment is a useful storage cupboard located in the hallway.
This apartment simply must be viewed!
Dean Lodge is a beautiful development of 42 one and two bedroom retirement apartments located in Southbourne, a popular suburb of the coastal town of Bournemouth. The Lodge holds an enviable position set on the cliff top above Southbourne’s golden sandy beach, offering spectacular views across Bournemouth Bay and towards the Isle of Wight.
The Lodge is directly opposite a path leading along the cliff top and down onto the stunning beaches and just a few hundred yards to the main shopping area, Southbourne Grove, a traditional high street with some independent and individual shops including bakeries, salons, florists, pubs, cafes and restaurants.
Southbourne is perfectly situated for quick and easy access into Bournemouth Town Centre, Christchurch, Hengistbury Head and The New Forest. Local transport is excellent with regular busses, Pokesdown railway station nearby with direct links into London Waterloo and Bournemouth International Airport just a few miles away for trips further afield.
Dean Lodge’s manager is on hand throughout the day to support the Owners and keep the development in perfect shape. They arrange many regular events in the Owners’ Lounge from coffee mornings to games afternoons.
A Guest Suite is available for your friends and family to stay in. In addition, you are entitled to use of the Guest Suites at all Churchill Living developments across the country. Prices are available from the Lodge Manager.
Dean Lodge has been designed with safety and security at the forefront. The apartment has an emergency Careline system installed, monitored by the onsite Lodge Manager during the day and 24 hours, 365 days a year by the Careline team. Careline integrated intruder alarm, secure video entry system and sophisticated fire and smoke detection systems throughout both the apartment and communal areas provide unrivalled peace of mind.
Dean Lodge is managed by the award winning Churchill Estates Management, working closely with Churchill Living and Churchill Sales & Lettings to maintain the highest standards of maintenance and service for every lodge and owner.
Dean Lodge requires at least one apartment Owner to be over the age of 60 with any second Owner over the age of 55.
Service Charges (year ending 31st May 2026): £3,003.86 per annum.
Ground Rent: £647.98 per annum. To be reviewed in May 2026
125 year Lease commencing July 2012
Council Tax Band: D
Please check regarding Pets with Churchill Estates Management. Any consents given in relation to pets are subject to the terms of the lease and any further rules and regulations made by Churchill Estates Management
Service charges include: Careline system, buildings insurance, water and sewerage rates, communal cleaning, utilities and maintenance, garden maintenance, lift maintenance, lodge manager.

















