Contact Agent:
- Apartment
- 2
- 1
- 1
Key Features:
- Two bedroom, first floor apartment with south-facing balcony
- Great location close to local amenities and transport links
- Fully fitted kitchen with integrated appliances
- Super efficient air source heating
- Lodge manager available 5 days a week
- Owners’ lounge & kitchen with regular social events
- 24 hour Careline system for safety and security
- Owners’ private car park
- A Guest Suite is available for your friends and family to stay in. In addition, you are entitled to use of the Guest Suites at all Churchill Retirement Living developments across the country.
Description:
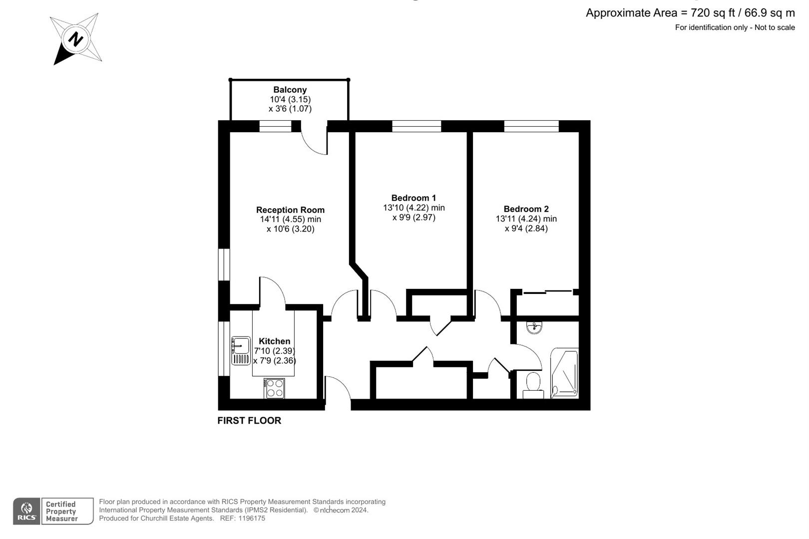
Churchill Sales & Lettings are delighted to be marketing this lovely two bedroom second floor apartment situated in the much sought after Chadwick Lodge. The property is presented in fantastic order throughout, having been recently redecorated and carpeted throughout. It also features new shutters on all windows and patio doors throughout.
The Lounge is a generous room which has ample space for living and dining room furniture and benefits from a spacious south-facing Balcony.
The Kitchen, which is accessed via the Lounge, offers a range of eye and base level units with working surfaces over and tiled splashbacks. There is a built in waist height oven, 4 ring electric hob with extractor hood over, a fridge and a freezer.
Bedroom One is a generous double room which has a useful built in storage cupboard and ample space for additional bedroom furniture if required.
Bedroom Two is another good size double room and is ideal for a guest room or office space.
The Shower room has a curved glass shower cubicle, heated towel rail, WC and a wash hand basin.
A very spacious apartment located in a fantastic position and within close proximity to local amenities.
Chadwick Lodge is a delightful development of 34 one and two bedroom apartments in the historic port of Southampton. The Lodge is located on Devonshire Road in the Bedford Place area of Southampton, known for its independent shops and restaurants. The popular West Quay shopping centre with its new Restaurant hub extension and the main high street are all less than a mile away. The South’s largest Theatre, The Mayflower is only ¼ of a mile away and just one of the many arts venues in Southampton. Transport is excellent with regular buses into the town centre and trains direct into London, the North and an International Airport.
The Lodge and the apartment are heated by a communal Air Source Heat Pump for supper efficient heating. The costs for the heating are included in the service charges.
The Lodge manager is on hand throughout the day to support the Owners and keep the development in perfect shape as well as arranging many regular events in the Owners’ Lounge from coffee mornings to games afternoons.
A Guest Suite is available for your friends and family to stay in. In addition, you are entitled to use of the Guest Suites at all Churchill Retirement Living developments across the country. Prices are available from the Lodge Manager.
Chadwick Lodge has been designed with safety and security at the forefront. The apartment has an emergency Careline system installed, monitored by the onsite Lodge Manager during the day and 24 hours, 365 days a year by the Careline team. A Careline integrated intruder alarm, secure video entry system and sophisticated fire and smoke detection systems throughout both the apartment and communal areas provide unrivalled peace of mind.
Chadwick Lodge is managed by the award winning Churchill Estates Management, working closely with Churchill Retirement Living and Churchill Sales & Lettings to maintain the highest standards of maintenance and service for every lodge and owner.
Chadwick Lodge requires at least one apartment resident to be over the age of 60 with any second resident over the age of 55.
Council Tax: Band C
Please check regarding Pets with Churchill Estates Management. Any consents given in relation to pets are subject to the terms of the lease and any further rules and regulations made by Churchill Estates Management.
Landlord Pays Service Charges, these include: Careline system, buildings insurance, water and sewerage rates, Air Source Heat Pump heating, communal cleaning, air source heating, utilities and maintenance, garden maintenance, lift maintenance, lodge manager and a contribution to the contingency fund.
Security Deposit
A security deposit equal to 5 week’s rent will be payable at the start of the tenancy. This covers damages or defaults on the part of the tenant during the tenancy. It will be reimbursed at the end of the tenancy subject to the details of the agreement and the findings of the inventory check out report.
Holding Deposit
A holding deposit equal to 1 weeks rent will be payable on acceptance of an application. This will be held and used towards the first months rent
Please note: The holding deposit will be withheld if the applicant(s) or any relevant person (including any guarantor(s)) withdraw from the tenancy, fail a Right-to-Rent check, provide materially significant false or misleading information, or fail to sign their tenancy agreement (and / or Deed of Guarantee) within 30 days (or other deadline as mutually agreed in writing).























