Beck Lodge, Park Gate, Southampton
- Apartment
- 1
- 1
- 1
Key Features:
- Brand new second floor one bedroom retirement apartment to rent
- Stunning development in Park Gate
- Fully fitted kitchen with integrated appliances
- Lodge manager available 5 days a week
- Owners’ lounge & kitchen with regular social events
- 24 hours Careline system for safety and security
- Owners’ private car park
- Great location close to the town centre & excellent transport links
- A Guest Suite is available for your friends and family to stay in. In addition, you are entitled to use of the Guest Suites at all Churchill Living developments across the country
- RENT INCLUDES WATER & SEWERAGE RATES & CARELINE SYSTEM
Description:
**ONE BEDROOM FIRST FLOOR RETIREMENT APARTMENT**
**BRAND NEW**
**LIFETIME TENANCY **
**INCLUDES SERVICE CHARGES & GROUND RENT **
**MORE PHOTOS TO FOLLOW**
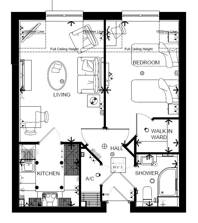
Churchill Sales & Lettings are delighted to be marketing this well presented one bedroom second floor apartment. The property offers deceptively spacious accommodation throughout and is presented in good order.
The Lounge offers ample space for living and dining room furniture.
The Kitchen is accessed via the Lounge and offers a range of eye and base level units with working surfaces over and tiled splashbacks. There is a built in waist height oven, 4 ring electric hob with extractor hood over, a fridge, a frost-free freezer and washer/dryer.
The Bedroom is a generous double room with a useful walk in wardrobe and plenty of space for additional bedroom furniture if required.
The Shower Room offers a large shower cubicle with handrail, heated towel rail, a WC and wash hand basin with vanity unit beneath.
Perfectly complementing this wonderful apartment is a useful storage cupboard located in the hallway.
Beck Lodge is a prestigious development of 46 one and two-bedroom retirement apartments found in Park Gate, Southampton.
Located in the borough of Fareham, Park Gate is situated close to Locks Heath and Segensworth close to the M27. The closest railway station is located in Swanwick with rail links all across the country. Local bus services operate to Fareham, Whiteley and Segensworth.
The area has a good selection of the amenities that you would expect to find locally including a Post Office, banks, independent traders, a delicatessen, doctors surgery and hairdressers. There is a Marks & Spencer food store opposite the development as well as a Sainsbury’s Local and Co-Op in the village centre.
The Lodge manager is on hand throughout the day to support the Owners and keep the development in perfect shape as well as arranging many regular events in the Owners’ Lounge from coffee mornings to games afternoons.
A Guest Suite is available for your friends and family to stay in. In addition, you are entitled to use of the Guest Suites at all Churchill Retirement Living developments across the country. Prices are available from the Lodge Manager.
Beck Lodge has been designed with safety and security at the forefront. The apartment has an emergency Careline system installed, monitored by the onsite Lodge Manager during the day and 24 hours, 365 days a year by the Careline team. Careline integrated intruder alarm, secure video entry system and sophisticated fire and smoke detection systems throughout both the apartment and communal areas provide unrivalled peace of mind.
Beck Lodge is managed by the award-winning Churchill Estates Management, working closely with Churchill Retirement Living and Churchill Sales & Lettings to maintain the highest standards of maintenance and service for every lodge and owner.
Beck Lodge requires at least one apartment Owner to be over the age of 60 with any second Owner over the age of 55.
OVER 60's RETIREMENT APARTMENT
Council Tax Band C
Please check regarding Pets with Churchill Estates Management. Any consents given in relation to pets are subject to the terms of the lease and any further rules and regulations made by Churchill Estates Management.
INCLUDED IN RENT: Service charges include: Careline system, buildings insurance, water and sewerage rates, communal cleaning, utilities and maintenance, garden maintenance, lift maintenance, lodge manager and a contribution to the contingency fund.
Security Deposit
A security deposit equal to 5 week’s rent will be payable at the start of the tenancy. This covers damages or defaults on the part of the tenant during the tenancy. It will be reimbursed at the end of the tenancy subject to the details of the agreement and the findings of the inventory check out report.
Holding Deposit
A holding deposit equal to 1 weeks rent will be payable on acceptance of an application. This will be held and used towards the first months rent
Please note: The holding deposit will be withheld if the applicant(s) or any relevant person (including any guarantor(s)) withdraw from the tenancy, fail a Right-to-Rent check, provide materially significant false or misleading information, or fail to sign their tenancy agreement (and / or Deed of Guarantee) within 30 days (or other deadline as mutually agreed in writing).

