Contact Agent:
Beck Lodge, Park Gate, Southampton, Hampshire
- Apartment
- 1
- 1
- 1
Key Features:
- One bedroom first floor apartment with Juliet balcony
- Great location close to the town centre & excellent transport links
- Owners’ lounge & kitchen with regular social events
- Lodge manager available 5 days a week
- 24 hour Careline system for safety and security
- Owners’ private car park
- Landscaped gardens
- A Guest Suite is available for your friends and family to stay in. In addition, you are entitled to use the Guest Suites at all Churchill Living developments across the country
- Recently redecorated
Description:
**ONE BEDROOM FIRST FLOOR RETIREMENT APARTMENT WITH JULIET BALCONY**
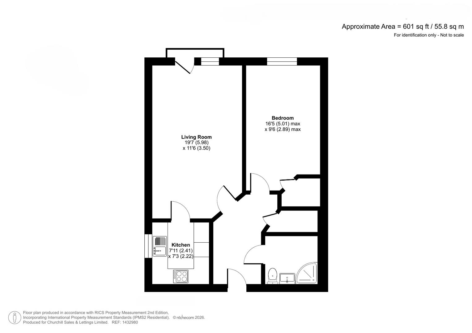
Welcome to Beck Lodge! Churchill sales and lettings are delighted to be marketing this lovely one bedroom first floor apartment. The property is conveniently located near the stairs and is presented in very good order throughout.
The Living Room offers ample space for living and dining room furniture and benefits from a feature electric fire with attractive surround. A French door opens to a Juliet balcony and windows provide lots of natural light.
The Kitchen offers a range of modern eye and base level units with working surfaces over and tiled splashbacks. There is a built-in waist height oven, 4 ring electric hob, washer/dryer, fridge and frost-free freezer. Windows provide light and ventilation.
The Bedroom is a good sized double room with a walk in wardrobe. There is plenty of space for additional bedroom furniture and a window keeps this lovely bedroom bright and airy.
The Shower Room offers a curved shower with handrail, a WC, wash hand basin with vanity unit beneath and a heated towel rail.
Perfectly complimenting this wonderful apartment is a useful walk in storage cupboard located in the hallway.
This apartment simply must be viewed!
Beck Lodge is a prestigious development of 46 one and two-bedroom retirement apartments found in Park Gate, Southampton.
Located in the borough of Fareham, Park Gate is situated close to Locks Heath and Segensworth close to the M27. The closest railway station is located in Swanwick with rail links all across the country. Local bus services operate to Fareham, Whiteley and Segensworth.
The area has a good selection of the amenities that you would expect to find locally including a Post Office, banks, independent traders, a delicatessen, doctors surgery and hairdressers. There is a Marks & Spencer food store opposite the development as well as a Sainsbury’s Local and Co-Op in the village centre.
The Lodge manager is on hand throughout the day to support the Owners and keep the development in perfect shape as well as arranging many regular events in the Owners’ Lounge from coffee mornings to games afternoons.
A Guest Suite is available for your friends and family to stay in. In addition, you are entitled to use the Guest Suites at all Churchill Living developments across the country. Prices are available from the Lodge Manager.
Beck Lodge has been designed with safety and security at the forefront. The apartment has an emergency Careline system installed, monitored by the onsite Lodge Manager during the day and 24 hours, 365 days a year by the Careline team. Careline integrated intruder alarm, secure video entry system and sophisticated fire and smoke detection systems throughout both the apartment and communal areas provide unrivalled peace of mind.
Beck Lodge is managed by the award-winning Churchill Estates Management, working closely with Churchill Living and Churchill Sales & Lettings to maintain the highest standards of maintenance and service for every lodge and owner.
Beck Lodge requires at least one apartment Owner to be over the age of 60 with any second Owner over the age of 55.
Service Charge (Year ending 30th November 2026): £3,612.21 per annum.
Ground Rent: £575 per annum. To be reviewed in May 2026.
Council Tax: Band C
999 year Lease commencing 2019
Please check regarding Pets with Churchill Estates Management. Any consents given in relation to pets are subject to the terms of the lease and any further rules and regulations made by Churchill Estates Management.
Service charges include: Careline system, buildings insurance, water and sewerage rates, Air Source heating, communal cleaning, utilities and maintenance, garden maintenance, lift maintenance, lodge manager and a contribution to the contingency fund.













