Contact Agent:
- Apartment
- 1
- 1
- 1
Key Features:
- One bedroom second floor apartment
- Fully fitted kitchen with integrated appliances
- Lodge manager available 5 days a week
- Owners’ lounge & kitchen with regular social events
- 24 hour Careline system for safety and security
- Lift to all floors
- Owners’ private car park
- Communal gardens & patio area
- A Guest Suite is available for your friends and family to stay in. In addition, you are entitled to use the Guest Suites at all Churchill Living developments across the country
- South facing
Description:
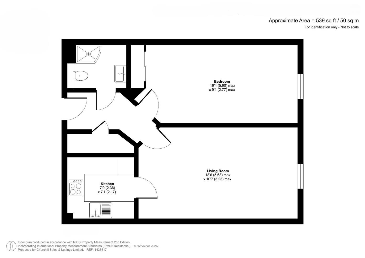
**ONE BEDROOM SECOND FLOOR RETIREMENT APARTMENT**
Churchill Sales & Lettings are pleased to be marketing this lovely one bedroom second floor apartment. The property is conveniently located near the stairs and is offered with no onward chain.
The Living room offers ample space for living and dining room furniture and benefits from a feature electric fire with attractive surround. A window provides lots of natural light and a door leads through to the Kitchen.
The Kitchen offers a range of modern eye and base level units with working surfaces over and tiled splashbacks. There is a built in waist height oven, 4 ring electric hob with extractor hood over, washer/dryer, fridge and a freezer.
The Bedroom is a generous double room with a built in mirrored wardrobe and plenty of space for additional bedroom furniture if required.
The Shower room offers a curved shower with handrail, a heated towel rail, WC and wash hand basin with vanity unit beneath and mirrored cabinet above.
Perfectly complementing the apartment is a separate WC and three useful storage cupboards located in the hallway.
Call us today to book your viewing at Avonbank Lodge!
Avonbank Lodge is a delightful development of 59 one and two bedroom retirement apartments situated on West Street, Newbury. The Lodge and the apartments are heated by a communal Air Source Heating. The costs for the heating are included in the service charges.
Located in West Berkshire, 50 miles south west of London, the market town of Newbury has good transport links via bus, rail and road.
Avonbank lodge is ideally located close to the centre of Newbury where you will find a range of national retailers, coffee shops and eateries as well as independent traders. An open-air market is held every Thursday and a Farmers market is held each month in the town.
The Lodge manager is on hand throughout the day to support the Owners and keep the development in perfect shape as well as arranging many regular events in the Owners’ Lounge from coffee mornings to games afternoons.
A Guest Suite is available for your friends and family to stay in. In addition, you are entitled to use the Guest Suites at all Churchill Living developments across the country. Prices are available from the Lodge Manager.
Avonbank Lodge has been designed with safety and security at the forefront. The apartment has an emergency Careline system installed, monitored by the onsite Lodge Manager during the day and 24 hours, 365 days a year by the Careline team. A Careline integrated intruder alarm, secure video entry system and sophisticated fire and smoke detection systems throughout both the apartment and communal areas provide unrivalled peace of mind.
Avonbank Lodge is managed by the award-winning Churchill Estates Management, working closely with Churchill Living and Churchill Sales & Lettings to maintain the highest standards of maintenance and service for every lodge and owner.
Avonbank Lodge requires at least one apartment resident to be over the age of 60 with any second resident over the age of 55.
Service Charge (Year ending 31st May 2026): £3,226.14 per annum.
Ground rent: £815.94 per annum. To be reviewed June 2031.
Council Tax: Band B
125 lease years commencing 2016
Please check regarding Pets with Churchill Estates Management. Any consents given in relation to pets are subject to the terms of the lease and any further rules and regulations made by Churchill Estates Management.
Service charges include: Careline system, buildings insurance, water and sewerage rates, Air Source Heating for the apartment, communal cleaning, utilities and maintenance, garden maintenance, lift maintenance, lodge manager and a contribution to the contingency fund.














