Contact Agent:
- Apartment
- 1
- 1
- 1
Key Features:
- Ground Floor Apartment
- Patio Area
- Lodge Manager available Monday to Friday
- Owners lounge & Kitchen with regular social events
- Fully fitted kitchen/diner with integrated appliances
- Lift to all floors
- 24 Hour emergency Careline system
- Great location close to the town centre & excellent transport links
- A Guest Suite is available for your friends and family to stay in
- RENT INCLUDES HEATING, WATER & SWERAGE RATES
Description:
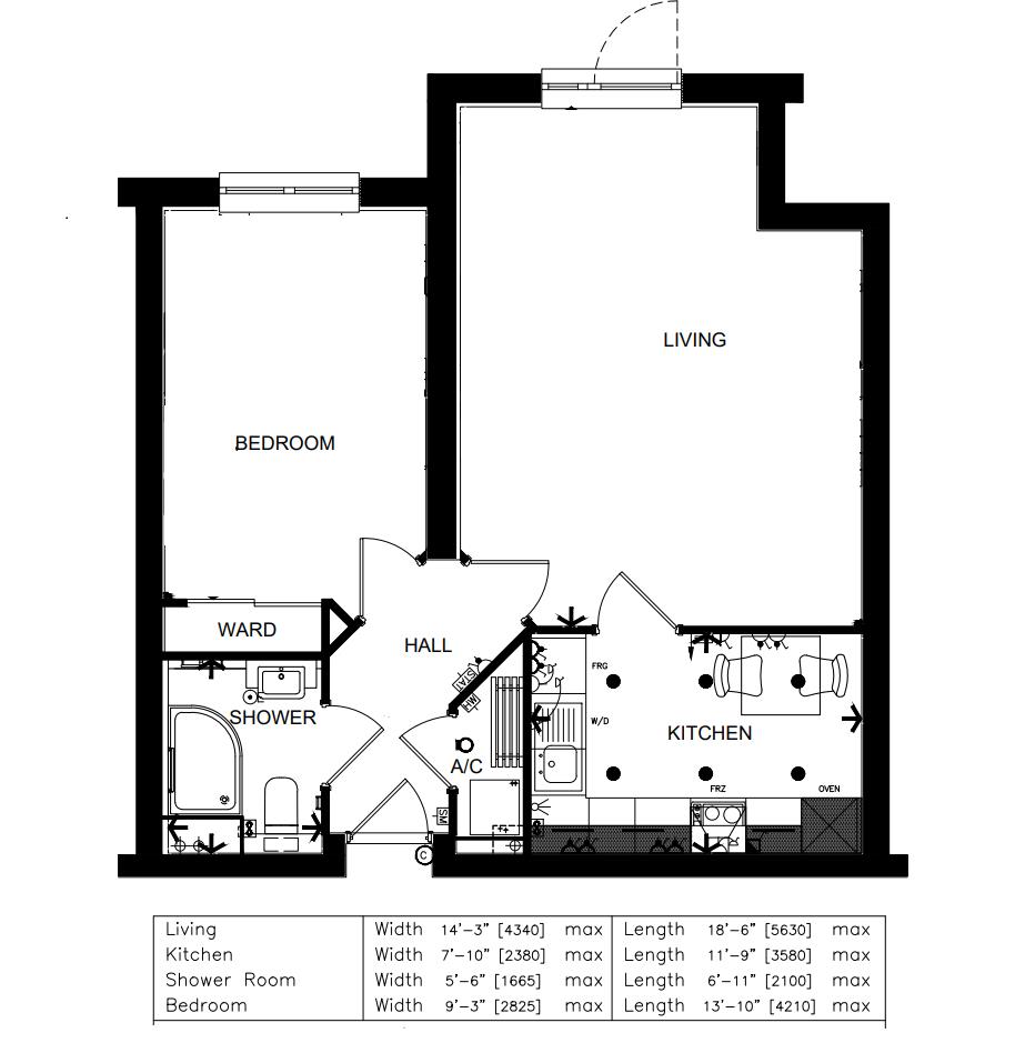
Churchill Sales & Lettings are delighted to be marketing this lovely one bedroom ground floor apartment with Patio area. The property offers deceptively spacious accommodation throughout and is presented in fantastic order.
The Lounge offers ample space for living room furniture and has an electric fire with attractive surround, and a door opening onto a patio area.
The Kitchen is accessed via the Lounge and offers a range of eye and base level units with recently replaced working surfaces over and tiled splashbacks. There is a built in waist height oven, 4 ring electric hob with extractor hood over, a dishwasher, a freezer and washer/dryer as well as a water softener unit under the sink.With ample space for dining furniture.
The Bedroom is a generous double room with a useful built in mirrored wardrobe and plenty of space for additional bedroom furniture if required.
The Shower Room offers a large shower cubicle with handrail, heated towel rail, a WC and wash hand basin with vanity unit beneath.
Perfectly complementing this wonderful apartment is a useful storage cupboard located in the hallway.
William Lodge is a delightful development of 26 one and two bedroom retirement apartments enjoying a stunning location on the banks of the River Avon in the historic market town of Malmesbury. Encircled by the River Avon on the edge of the Cotswolds, Malmesbury is said to be the oldest continually inhabited town in England. The market town is called the “Queen of the Hilltop Towns” and is steeped in history spanning over 1000 years.
William Lodge is well located for the High Street with independent retailers and markets. At the heart of the town is the elaborately engraved 15th century Market Cross, one of the best preserved of its kind in the country. The town’s medieval streets with their old Courtroom, shops and Inns are dominated by the beautiful seventh century Abbey with the Gardens often being used for concerts and events during the summer.
Malmesbury is home to many annual musical, cultural and food events and festivals. Athelstan Museum, named after the first ‘King of all England’ tells the history of the town and is home to a collection of artefacts and regular exhibitions and events.
Malmesbury is perfectly located to enjoy the Georgian Spa City of Bath with its classical architecture, Roman baths, majestic Abbey and shopping facilities. The nearby Royal Gardens at Highgrove are an extraordinary collection of gardens, created by HRH The Prince of Wales. Further south is the village of Lacock with its picturesque streets, historic buildings, Abbey and Country House.
William Lodge’s manager is on hand throughout the day to support the owners and keep the development in perfect shape. The manager assists in arranging many regular events in the Owners’ Lounge from coffee mornings to games afternoons.
A Guest Suite is available for your friends and family to stay in. In addition, you are entitled to use of the Guest Suites at all Churchill Retirement Living developments across the country. Prices are available from the Lodge Manager.
William Lodge has been designed with safety and security at the forefront. The apartment has an emergency Careline system installed, monitored by the onsite Lodge Manager during the day and 24 hours, 365 days a year by the Careline team. A Careline integrated intruder alarm, secure video entry system and sophisticated fire and smoke detection systems throughout both the apartment and communal areas provide unrivalled peace of mind.
William Lodge is managed by the award winning Churchill Estates Management, working closely with Churchill Retirement Living and Churchill Sales & Lettings to maintain the highest standards of maintenance and service for every lodge and owner.
William Lodge requires at least one apartment resident to be over the age of 60 with any second resident over the age of 55.
OVER 60's RETIREMENT APARTMENT
Council Tax Band D
Please check regarding Pets with Churchill Estates Management. Any consents given in relation to pets are subject to the terms of the lease and any further rules and regulations made by Churchill Estates Management
LANDLORD PAYS: Service charges include: Careline system, buildings insurance, water and sewerage rates, Air Source Heating, communal cleaning, utilities and maintenance, garden maintenance, lift maintenance, lodge manager and a contribution to the contingency fund.
Security Deposit
A security deposit equal to 5 week’s rent will be payable at the start of the tenancy. This covers damages or defaults on the part of the tenant during the tenancy. It will be reimbursed at the end of the tenancy subject to the details of the agreement and the findings of the inventory check out report.
Holding Deposit
A holding deposit equal to 1 weeks rent will be payable on acceptance of an application. This will be held and used towards the first months rent
Please note: The holding deposit will be withheld if the applicant(s) or any relevant person (including any guarantor(s)) withdraw from the tenancy, fail a Right-to-Rent check, provide materially significant false or misleading information, or fail to sign their tenancy agreement (and / or Deed of Guarantee) within 30 days (or other deadline as mutually agreed in writing).
Service charges include: Careline system, buildings insurance, water and sewerage rates, Air Source Heating, communal cleaning, utilities and maintenance, garden maintenance, lift maintenance, lodge manager and a contribution to the contingency fund




















