Contact Agent:
- Apartment
- 2
- 1
- 2
Key Features:
- Two bedroom ground floor apartment with two patios
- Owners lounge & Kitchen with regular social events
- Fully fitted kitchen with integrated appliances
- Lift to all floors
- 24 Hour emergency Careline system
- Owners Car Parking and landscaped Communal Gardens
- Great location close to the town centre & excellent transport links
- A Guest Suite is available for your friends and family to stay in. In addition, you are entitled to use the Guest Suites at all Churchill Living developments across the country
Description:
**TWO BEDROOM GROUND FLOOR RETIREMENT APARTMENT WITH TWO PATIOS**
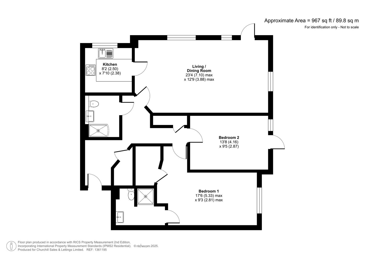
Situated in a fantastic position in the development is this delightful two bedroom apartment which benefits from two private patios. The property provides spacious accommodation and is presented in fantastic order throughout. It is also conveniently located for the guest suite, owners lounge and entrance.
The living room offers ample space for living and dining room furniture. A French door opens to the owners private patio area and a further door leads through to the Kitchen.
The kitchen offers a range of modern eye and base level units with working surfaces over and tiled splashbacks. There is a built in waist height oven, 4 ring electric hob, washer/dryer, fridge and frost-free freezer. A large window provides light and ventilation.
Bedroom one is a good-sized double with a walk-in wardrobe. An en-suite offers a shower cubicle, WC, wash hand basin with vanity unit beneath and a heated towel rail.
Bedroom two is another good-sized double with a French door leading to a patio. This room could also be used as a separate living room, study or hobby room.
The shower room offers a large shower with sliding door and handrail, a WC, wash hand basin with vanity unit beneath and a heated towel rail.
Perfectly complimenting this wonderful apartment are two useful storage cupboards located in the hallway.
This apartment simply must be viewed!
New Pooles Lodge is a delightful development of one and two bedroom retirement apartments located in the outer urban area of Fishponds in the north east of the city of Bristol. It is approximately 3 miles from Bristol city centre. It has two large Victorian era parks, Eastville Park and Vassell's Park. The River Frome runs through both parks, with the Frome Valley Walkway running alongside it. A restored mill can be found at Snuff Mills near the Vassells Park end of the river. It has retained its original waterwheel, which can still be seen and heard turning. Eastville Park has its own large boating lake, with central wildlife reserves. The High Street features many amenities including a chemist, post office, opticians and supermarkets including a Coop and Sainsburys local. There are plenty of shops and cafes within walking distance, and the Eastgate Centre with a large Tescos is 10 minutes away by car. Doctors' surgeries and dentists are all nearby.
Fishponds is mainly residential through which two main bus routes pass. The vibrant town offers excellent transport links to Bristol, Kingswood and Staple Hill. Bristol City Centre is easily accessible by bus or car, and the M32 is 10 minutes away with links to the M4 and M5.
The Lodge manager is on hand throughout the day to support the owners and keep the development in perfect shape. They arrange many regular events in the Owners’ Lounge from coffee mornings to games afternoons.
New Pooles Lodge has been designed with safety and security at the forefront, all apartments and communal areas have an emergency Careline system installed, monitored by the onsite Lodge Manager during the day and 24 hours, 365 days a year by the Careline team. A Careline integrated intruder alarm, secure video entry system and sophisticated fire and smoke detection systems throughout both the apartment and communal areas provide unrivalled peace of mind.
A Guest Suite is available for your friends and family to stay in. In addition, you are entitled to use of the Guest Suites at all Churchill Living developments across the country. Prices are available from the Lodge Manager.
New Pooles Lodge is managed by the award winning Churchill Estates Management, working closely with Churchill Living and Churchill Sales & Lettings to maintain the highest standards of maintenance and service for every lodge and owner.
New Pooles Lodge requires at least one apartment resident to be over the age of 60 with any second resident over the age of 55.
Service Charge (Year ending 31st May 2026): £5,474.07 per annum.
Ground rent £894.54 per annum. To be reviewed in June 2032.
Council Tax Band D
999 year Lease commencing 2018
Please check regarding Pets with Churchill Estates Management. Any consents given in relation to pets are subject to the terms of the lease and any further rules and regulations made by Churchill Estates Management.
Service charges include: Careline system, buildings insurance, Air Source heating, water and sewerage rates, communal cleaning, utilities and maintenance, garden maintenance, lift maintenance, lodge manager and a contribution to the contingency fund.



















