Contact Agent:
- Apartment
- 1
- 1
- 1
Key Features:
- One bedroom, second floor retirement apartment
- Excellent decorative order
- Water and sewerage included in the rent
- Convenient for the lift and stairs
- Modern fitted kitchen with integrated appliances
- Lodge Manager available 5 days a week
- Owners’ Lounge & coffee bar with regular social events
- 24 hour Careline system for safety and security
- Owners’ private car park
- A Guest Suite is available for your friends and family to stay in. In addition, you are entitled to use of the Guest Suites at all Churchill Retirement Living developments across the country.
Description:
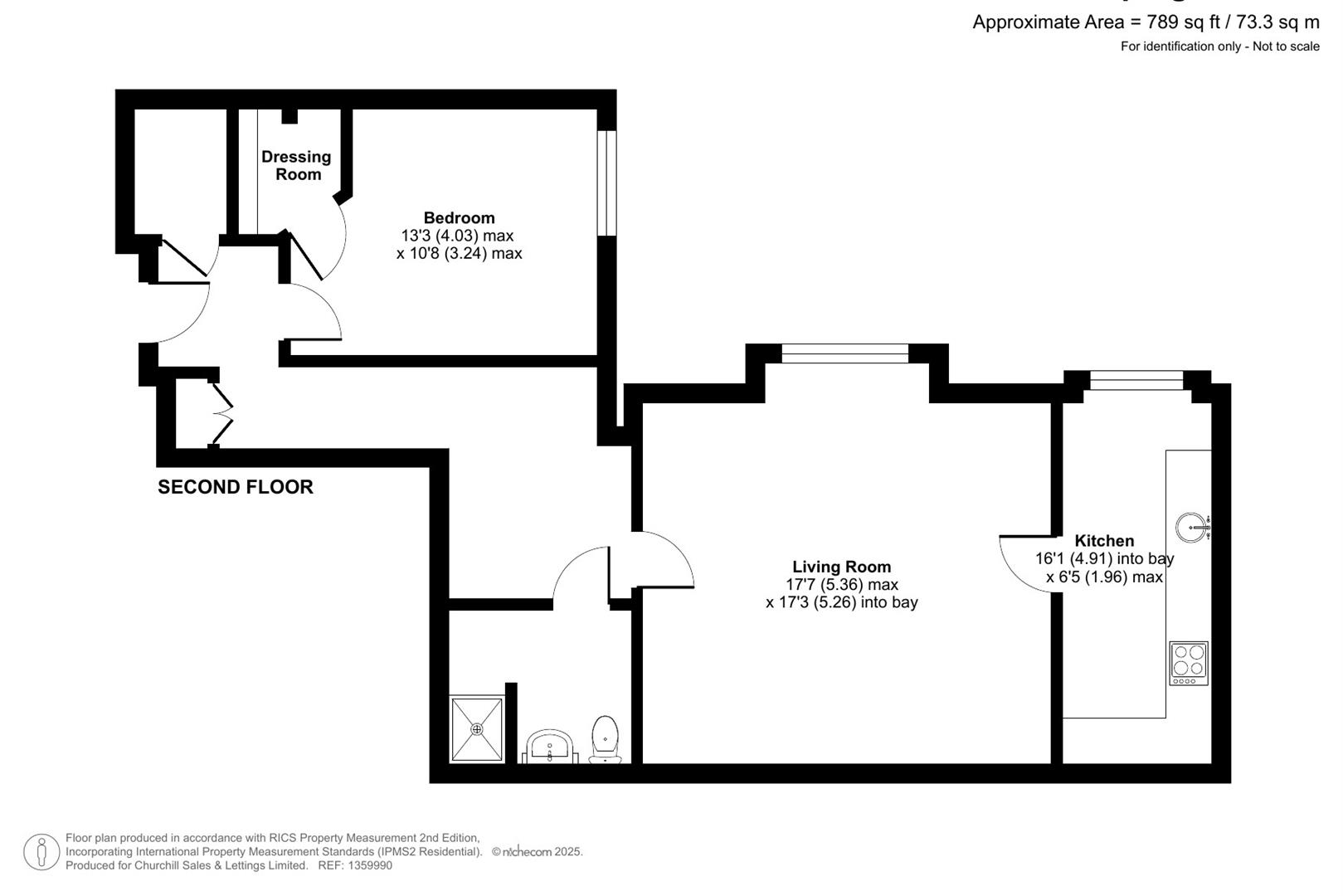
Churchill Sales & Lettings are delighted to be marketing this stunning one bedroom, second floor floor apartment with views over the communal gardens.
The Lounge offers ample space for living and dining room furniture and has a feature fireplace.
The Kitchen is accessed via the Lounge and offers a range of eye and base level units with working surfaces over and tiled splashbacks. There is a built in waist height oven, 4 ring ceramic hob with extractor hood over, a fridge, a frost-free freezer, washer/dryer and dishwasher.
The bedroom is a generous double room with a useful walk in wardrobe/office and plenty of space for additional bedroom furniture if required.
The Wet Room has a screen, a handrail, heated towel rail, a WC and wash hand basin with vanity unit beneath.
There is also a good size airing cupboard in the hallway.
Edinburgh Lodge is a charming development of 27 one and two-bedroom retirement apartments situated in an ideal position close to the essential amenities. Shopping and leisure facilities are plentiful in Orpington; the Walnuts Shopping Centre houses the Library and Odeon Cinema whilst the Nugent Shopping Park is an out of town shopping area, located about 1.5 miles north of the High Street, and provides a variety of shops, in addition to those in Orpington’s High Street.
Orpington also has a number of supermarkets, including two superstores. The Walnuts Leisure Centre includes a swimming pool, a gym, multi-purpose sports hall and squash courts.
Situated to the north of the town are Priory Gardens which has ornamental gardens and ponds and is home to a medieval ‘hall house’ containing Bromley Museum. Slightly further out, towards the south of Orpington in Farnborough is the High Elms Country Park Local Nature Reserve – 250 acres of countryside combined with a golf course and is a Site of Special Scientific Interest.
Orpington benefits from good transport links with trains from Orpington offering services to London’s Charing Cross, Cannon Street and Victoria Stations, Tunbridge Wells, Hastings and Sevenoaks. Buses provide links to destinations such as Bromley, Chislehurst, Crystal Palace and Lewisham.
The Lodge manager is on hand throughout the day to support the Owners and keep the development in perfect shape as well as arranging many regular events in the Owners’ Lounge from coffee mornings to games afternoons.
A Guest Suite is available for your friends and family to stay in. In addition, you are entitled to use of the Guest Suites at all Churchill Retirement Living developments across the country. Prices are available from the Lodge Manager.
Edinburgh Lodge has been designed with safety and security at the forefront, the apartment has an emergency Careline system installed, monitored by the onsite Lodge Manager during the day and 24 hours, 365 days a year by the Careline team. A Careline integrated intruder alarm, secure video entry system and sophisticated fire and smoke detection systems throughout both the apartment and communal areas provide unrivalled peace of mind.
Edinburgh Lodge is managed by the award winning Churchill Estates Management, working closely with Churchill Retirement Living and Churchill Sales & Lettings to maintain the highest standards of maintenance and service for every lodge and owner.
Edinburgh Lodge requires at least one apartment Owner to be over the age of 60 with any second Owner over the age of 55.
Council Tax Band D
Please check regarding Pets with Churchill Estates Management. Any consents given in relation to pets are subject to the terms of the lease and any further rules and regulations made by Churchill Estates Management.
Landlord pays Service charges, these include: Careline system, buildings insurance, water and sewerage rates, communal cleaning, utilities and maintenance, garden maintenance, lift maintenance, lodge manager and a contribution to the contingency fund.
Security Deposit
A security deposit equal to 5 week’s rent will be payable at the start of the tenancy. This covers damages or defaults on the part of the tenant during the tenancy. It will be reimbursed at the end of the tenancy subject to the details of the agreement and the findings of the inventory check out report.
Holding Deposit
A holding deposit equal to 1 weeks rent will be payable on acceptance of an application. This will be held and used towards the first months rent
Please note: The holding deposit will be withheld if the applicant(s) or any relevant person (including any guarantor(s)) withdraw from the tenancy, fail a Right-to-Rent check, provide materially significant false or misleading information, or fail to sign their tenancy agreement (and / or Deed of Guarantee) within 30 days (or other deadline as mutually agreed in writing).

















