Contact Agent:
- Apartment
- 2
- 1
- 1
Key Features:
- Two bedroom second floor apartment
- Fully fitted kitchen with integrated appliances
- Lodge manager available 5 days a week
- Owners’ lounge & kitchen with regular social events
- 24 hours Careline system for safety and security
- Owners’ private car park
- Great location close to the town centre & excellent transport links
- Landscaped gardens and borders for use by residents
- A Guest Suite is available for your friends and family to stay in. In addition, you are entitled to use the Guest Suites at all Churchill Living developments across the country
Description:
**TWO BEDROOM RETIREMENT APARTMENT IN FILTON**
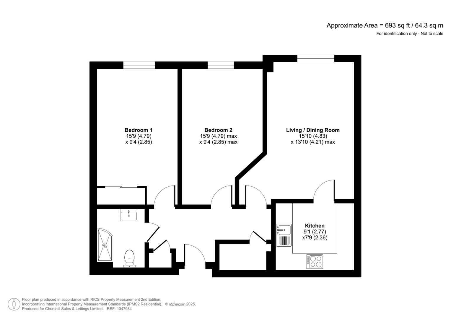
Welcome to Concorde Lodge! Churchill Sales & Lettings are delighted to be marketing this two bedroom second floor apartment. The property offers deceptively spacious accommodation and is conveniently located near the lift providing easy access.
The Kitchen is accessed via the Living Room with a range of eye and base level units with working surfaces over and tiled splashbacks. There is a built-in waist-height oven, 4-ring electric hob with extractor hood over, a fridge and freezer as well as a countertop dishwasher.
The Living Room offers plenty of space for living and dining room furniture. A window provides lots of natural light.
Bedroom One is a good-size double with a built-in mirrored wardrobe. A large window keeps this lovely bedroom bright and light.
Bedroom Two is another good-sized room which could be used as a separate Living Room, Study or Hobby Room.
The Shower Room offers a curved shower with handrail, a heated towel rail, WC and wash basin with vanity unit beneath.
Perfectly complementing this wonderful apartment are two useful storage cupboards located off the hallway.
Call us today to book your viewing at Concorde Lodge!
Concorde Lodge is a development of 65 one and two bedroom retirement apartments in Filton, a town with a long history linked to the aerospace industry.
The town boasts two main shopping areas, The Shield Centre and Abbey Wood Retail Park, both offering a good selection of shops and amenities catering for every need. Filton Sports and Leisure centre includes a swimming pool, badminton and squash courts and Filton golf club is a beautiful parkland 9-hole course.
Local transport is excellent with Local buses around and across nearby towns, train services connecting to the UK’s main lines and Bristol Airport nearby for international travel.
The Lodge manager is on hand throughout the day to support the Owners and keep the development in perfect shape as well as arranging many regular events in the Owners’ Lounge from coffee mornings to games afternoons.
A Guest Suite is available for your friends and family to stay in. In addition, you are entitled to use of the Guest Suites at all Churchill Living developments across the country. Prices are available from the Lodge Manager.
Concorde Lodge has been designed with safety and security at the forefront. The apartment has an emergency Careline system installed, monitored by the onsite Lodge Manager during the day and 24 hours, 365 days a year by the Careline team. Careline integrated intruder alarm, secure video entry system and sophisticated fire and smoke detection systems throughout both the apartment and communal areas provide unrivalled peace of mind.
Concorde Lodge is managed by the award winning Churchill Estates Management, working closely with Churchill Living and Churchill Sales & Lettings to maintain the highest standards of maintenance and service for every lodge and owner.
Concorde Lodge requires at least one apartment resident to be over the age of 60 with any second resident over the age of 55.
Service Charge (Year ending 31st May 2026): £4,627.01 per annum.
Ground Rent: £705.74 per annum. To be reviewed in April 2026
Council Tax Band B
125 Year Lease Commencing 2012
Please check regarding Pets with Churchill Estates Management. Any consents given in relation to pets are subject to the terms of the lease and any further rules and regulations made by Churchill Estates Management
Service charges include: Careline system, buildings insurance, water and sewerage rates, Air Source Heating, communal cleaning, utilities and maintenance, garden maintenance, lift maintenance, lodge manager and a contribution to the contingency fund.


















